Не Горят Стоп Сигналы на Рено Меган – Предохранитель зарядки
Рено меган 2 не работает печка
Две недели назад одним прекрасным субботним днём после работы прихожу на парковку к своему авто, а лобовое стекло как-будто изнутри запотело…
Странно, подумал я… открыл дверь… слышу пахнет как-будто паленой изоляцией проводов, но не обратил внимания… думал откуда-то тянет с улицы может. Завёлся… включил печку на максимум — думаю сейчас быстро отпотеет стекло, но не тут то было! Не слышу привычного гула печки.
Выключил музыку… кручу-верчу регулятор скорости, а оно — болт… не работает нихрена, а проводкой воняет всё сильнее…
Попытки дёргать предохранители в салоне ни к чему не привели окромя того, что на максимальной скорости + при условии включения кнопки кондиционера вентилятор еле шуршал из последний сил — всё же была устойчивая мысль, что вонь не от машины, а с улицы… Но потом — запотевшее лобовое… вонь и неработающий вентилятор натолкнули на мысль, что сдох вентилятор… замкнул… хрен его знает короче…
И в этот чудный зимний день опустил я окна (воняет то всё сильнее и сильнее) и поехал домой. На трети пути вентилятор замер окончательно.
Приехал в гараж, скинул клеммы и оставил проблему на завтра…
Ехать к электрику и платить деньги принципиально пока не хочу… пока не попробовал решить проблему самостоятельно.
Утром воскресения, вооружившись знаниями интернета пошёл и любимой девушкой — пошли в гараж…
Я как «профессионал» в электронике, который вообще ничего в ней не понимает почему-то решил искать проблему сразу непосредственно в самом вентиляторе… Хотя в мануале шаг за шагом написаны действия что и в какой последовательности и собственно начинается всё из салона… Но как самый умный гору обходить не стал, а пошёл напрямик…
Решил лезть сразу в вентилятор… Что я хочу сказать? Добирался я до него неделю =))))) Сначала написал тут, но потом решил, что это достойно отдельной статьи Эпопея с поводками дворников

Как написано во многих бортжурналах — СНЯТЬ ПОВОДКИ ДВОРНИКОВ ЧУТЬ ЛИ НЕ САМОЕ СЛОЖНОЕ В ПОДОБНОМ РЕМОНТЕ! Надеюсь… )))
— лампочки кондиционера и рециркуляции горят, если кнопку нажать;
— при повороте регулятора скорости (6 скоростей) где-то под капотом щёлкает какое-то реле на каждой каждой позиции, но вентилятор молчит… Реле это я ещё не нашёл… но сделал вывод, что если реле щёлкает, то по идее через крутилку ток идёт и она рабочая — я прав или нет?
Предохранители рено сценик 2 и блоки реле с описанием и схемами 1
- На торпедо, слева от водителя, имеется пластиковая накладка. Она держится на нескольких защёлках. Главная клипса расположена в центре накладки, так что надавить необходимо именно туда. После того как раздастся характерный щелчок, накладка аккуратно вытаскивается.
Где находится блок предохранителей Renault Megane 1, 2 и 3: схема расположения под капотом в моторном отсеке и в салоне, описание с фото и видео Среди неполадок чаще всего встречаются такие случаи:
Как поменять приборы освещения в фонарях?
Теперь можно отсоединить разъём с проводами, которым соединяется фонарь и схема электрооборудования Рено Логан. Для его снятия нужно отвинтить два пластмассовых винта, которые удерживают его на панели. Во время выполнения этой операции нужно поддерживать фонарь рукой, иначе его можно уронить и разбить.
Фонарь снят и находится в ваших руках, теперь может быть проведена проверка схемы, замена приборов освещения в стоп-сигнале, которые на автомобиле Логан закрыты пластмассовым корпусом на двух защёлках. Чехол легко снимается после нажатия пальцами.
Схема расположения ламп освещения в фонаре такова, что нужная нам расположена в его верхней части.
Её замена выполняется таким образом. Лампу пальцами легко нажимают вниз и поворачивают до совпадения выступов с проёмами для крепления. Под действием пружинного контакта она подастся вверх.
w1nner писал(а):Может какой-то контакт от педали глючит?
именно так и есть-там на кронштейне педали тормоза концевик специальный…
конечно исправят-обязаны заменить(или отрегулировать-он регулируемый).Попробуйте сами посмотреть-он снимается с кронштейна.И разъем на нем есть-может поправить просто надо-поплотнее насадить…
до утра под Луной мы бродили с тобой, потому что с тобою мы- дрожжи!
boris55
Московский звездоболец Сообщения: 17004Зарегистрирован: 11 янв 2006, 00:07Откуда: Карбонарий.Москва,Тушино.

Предохранители и реле Renault Logan
- При торможении не горит один фонарь;
- При включении не горят оба фонаря сигналов торможения;
- Не работает дополнительный фонарь торможения.
Перестала работать печка на рено меган 2 Всё на свете должно происходить медленно и неправильно, чтобы не сумел загордиться человек, чтобы человек был грустен и растерян. © В.Ерофеев
Можно ли ездить если не работают стоп сигналы? Авто-ремонт
Re: Не загораются стоп-сигналы.

Реле-регулятор
Ближний свет
Схема расположения ламп освещения в фонаре такова, что нужная нам расположена в его верхней части.
Постоянно горят стоп сигналы
Устранение неисправностей стоп-сигналов, которые не гаснут:
- Нажмите педаль тормоза рукой и посмотрите, как движение педали связано с работой выключателя стоп-сигнала. Вам может понадобиться только перенастроить коммутатор для решения проблемы.
- Для регулировки отсоедините разъем и поверните переключатель, чтобы переместить контакт датчика, в зависимости от конкретной ситуации. Разместите контакт так, чтобы вам не нужно было слишком сильно нажимать на педаль, прежде чем загорятся стоп-сигналы.
- Вы хотите, чтобы свет включался легким движением педали.
- Кроме того, посмотрите, можно ли регулировать положение переключателя. Возможно, вам понадобится только перевести переключатель обратно в правильное положение относительно педали.
- Другая возможность заключается в том, что внутренний механизм выключателя изношен, и выключатель нуждается в замене. При необходимости обратитесь к руководству по ремонту вашего автомобиля или замените изношенный блок контактов.

Постоянно горят стоп сигналы
- Установите мультиметр на постоянное напряжение и нажмите кончик красного провода на один из контактов в розетке, а черный провод — на стенку розетки (имеется ввиду патрон в который садится лампа)
- Попросите помощника нажать педаль тормоза.
- Если есть напряжение, скорее всего, у вас плохая лампочка. Если напряжения нет, повторите тест, но на этот раз подключите черный измерительный провод к заземлению шасси (обратите внимание на неокрашенную металлическую поверхность, болт или кронштейн).
- Если напряжение есть, проверьте наличие плохого заземления на розетке (перейдите к следующему шагу).
- Если напряжение по-прежнему отсутствует, проверьте разъем лампы на наличие коррозии, ослабленных проводов и состояния. Также проверьте, не поврежден ли провод электропитания между розеткой и выключателем стоп-сигнала.
- При необходимости удалите коррозию с помощью проволочной щетки.
- Чтобы проверить заземление в патроне лампы:
- Подсоедините проволочную перемычку между стороной заземления розетки и надежным заземлением корпуса при этом лампочку вкрутите в патрон и нажмите педаль тормоза (или используйте перемычку на электрическом разъеме выключателя стоп-сигнала).
- Если лампочка загорается, отремонтируйте разъем заземления.
- Если лампа по-прежнему не работает, найдите разрыв между проводом, который переносит ток от стоп-сигнала к выключателю стоп-сигнала.
Megane III без фар, дневных ходовых огней, противотуманных фар и габаритов. Однозначно нельзя, так как при движении необходимо включить хотя бы габариты. … 2.3.1 ПДД, если фара перестала работать во время движения, то вы имеете право ехать до остановочного пункта или до ремонтной мастерской.
Процесс замены
Конструкция блока под капотом на автомобилях Рено Меган крайне неудобная, поэтому процесс замены может вызывать некоторые трудности.
Как заменить предохранитель?
Наиболее трудоемко поменять предохранители на Рено Меган 2 в блоке моторного отсека.
- ключи TORX T40, Т30;
- обычный ключ на 10 и 13 мм;
- отвертка с плоским и тонким жалом;
- запасные предохранители;
- щипцы для снятия, они расположены под крышкой блока в салоне.
Для непосредственного доступа к плавким вставкам необходимо снять ряд элементов с машины.
Например, на Меган с кузовом универсал нужно выполнить следующее:
Кроме этого, в случае необходимости нужно заменить вставки в маленьком блоке высоконагруженных цепей. Этот блок виден в нижней части корпуса, который не демонтирован с автомобиля.
Весь процесс по замене предохранителя на Рено Меган 2 детально изложен в видеоролике, предоставленном каналом Полезный Китай.
При замене предохранителей необходимо учесть, что на Меган первого и второго поколения деталь просто вытаскивается вверх штатными щипцами. На Мегане третьего поколения он сначала сдвигается вбок и только потом вынимается.
При поиске неисправного предохранителя на Меган 3 необходимо тщательно изучать схему. Например, каждый стоп-сигнал машины получает питание по отдельной цепи и имеет отдельный предохранитель в салонном блоке.
Доступ к электрооборудованию на таких машинах организован проще.
Для того, чтобы демонтировать блок необходимо:
- Отстегнуть четыре защелки по углам.
- Демонтировать два фиксатора красного цвета.
- Снять заглушку проводки.
- Вынуть блок на себя и заменить необходимые детали.
Как заменить блок?

| Номер | Ток, А | Назначение |
| a | 70 | Подача питания без отключения во время пуска мотора |
| b | 70 | Подача питания с отключением во время пуска мотора |
| C | 40 | Обогрев стекла |
| D | 20 | Звуковой сигнал в руле |
Re: Не загораются стоп-сигналы.
Какой штраф за не горящую фару? w1nner
Сообщения: 212Зарегистрирован: 08 июн 2007, 14:09Откуда: СПб. Веселый Поселок.
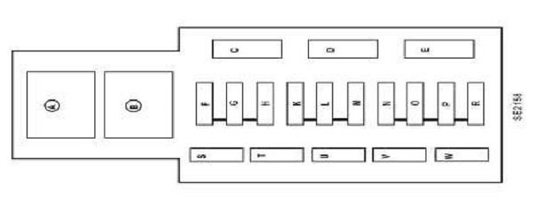
Схема предохранителей Scenic 2
Ниже представлены варианты, которые подходят для стандартной комплектации и Гранд, бензиновых моторов и дизелей. Схема соответствует таковой для параллельного поколения Megane и Coupe conso, выпускавшегося в тот же период между 2004 и 2008 годами. Основной блок похож на установленный на авто 2000 г. Добавилось лишь дополнительное расположение под сидением пассажира.
Расшифровка каждой схемы представлена в виде таблицы. В салоне авто

Главное реле
Находится рядом с замком зажигания в салоне автомобиля.
Предохранитель стояночного тормоза
Плавкий элемент защиты электро ручника расположился в дополнительном монтажном блоке салона под номером 1 мощностью 25 А. Дополнительно установлен предохранитель ручки управления стояночного тормоза — занимает место 7А в подкапотном блоке с мощностью 7,5 Ампер.
Реле и предохранитель кондиционера
Защита муфты включения компрессора занимает место 4 в монтажном блоке моторного отсека Scenic 2 и рассчитан на 10 Ампер. Его переключатель можно найти на самом компрессоре.
Предохранитель и реле стартера
Втягивающее нужно смотреть рядом с этим устройством, а вот его предохранитель №3 в подкапотом блоке. Его мощность 25 А.
Предохранитель прикуривателя: где стоит
Основной элемент Scenic 2 находится в блоке за крышкой люка приборки и обозначен на схеме буквой Т, рассчитан на 20 Ампер. За прикуриватель в подлокотнике отвечает плавкий элемент G, с номиналом, меньшим на 5 А.
Предохранитель габаритов
Их два, каждый отвечает за свою сторону фар, и они находятся в блоке под капотом. Если не горит левая сторона, то проблемы возникли с плавким элементом В7, а если правая — то с 7А. Мощность обоих равна 7,5 Амперам и они одновременно отвечают за целый ряд других приборов.
Предохранитель и реле бензонасоса
Элемент топливного насоса Сценик 2 Grand рх4 находится непосредственно на самом устройстве.
Задний ход
Плавкий элемент расположен в блоке моторного отсека под номером 5С и имеет мощность 10 А.
Реле дворников
Панель приборов
Элемент защиты щитка Сценика 2 можно найти в салонном блоке, на схеме он обозначен литерой L. Он рассчитан на 20 Ампер.
Противотуманные фары
Предохранитель ПТФ находится в главном отсеке, на схеме блока обозначен цифрой 10. Его мощность 20 А.
Предохранитель и реле бензонасоса
Проблемы с электроникой: способ диагностики и решения

Какой штраф за неработающие стоп сигналы в Украине?
- серый – 2 и 3 А
- светло-коричневый – 5 А;
- коричневый – 7,5 А;
- красный – 10 А;
- светло-синий – 15 и 30 А;
- желтый – 20 А;
- белый – 25 и 30 А;
- светло-бежевый, темно-зеленый – 30 А;
- оранжевый – 40 А и др.
Возможные неисправности освещения при торможении Дополнительный блок стоит за аккумулятором автомобиля.
