Не Горит Индикатор Габаритов Мазда 3. Свечи зажигания
Предохранители и реле Mazda 3 (BL; 2010-2013)
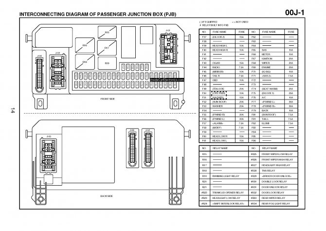
Штатное расположение предохранителей на автомобилях семейства Мазда 3 неизменно, независимо от поколения, года выпуска технического средства.
Основной блок предохранителей (далее — БП) установлен в салоне, в правой нижней части торпеды, над вещевым ящиком. Всего: реле 14 штук, БП – 36 штук.
Где находится дополнительный блок: силовой блок модулей расположен в моторном отсеке, за аккумуляторной батареей, в черном корпусе из пластика.
В ходе ежедневной эксплуатации технического средства, БП изнашиваются, перегорают плавильные элементы. Механизмы и агрегаты перестают функционировать в штатном режиме.
Процесс замены предохранителей вовсе не сложный, задача под силу каждому автолюбителю. Будьте внимательны при профилактике, устанавливайте только равнозначные модули.
При возникновении сложностей, затруднений обратитесь к специалистам СТО.

| Маркировка / ампераж | За что отвечает (с описанием) |
| F (Ф-1) / 40 | Электрический вентилятор системы охлаждения двигателя |
| F (Ф-2) / 80 | Насос гидравлического усилителя |
| F (Ф-3) / 40 | Цепи питания: диагностический разъем, аварийка, стеклоочиститель спереди, на омыватель стекла, центральный замок, габариты |
| F (Ф-4) / 40 | Фары |
| F (Ф-5) / 80 | Электрическая цепь РТС |
| F (Ф-6) / 30 | Зарезервировано |
| F (Ф-7) / 30 | ABS, система курсовой устойчивости |
| F (Ф-8) / 20 | АБС дополнительно |
| F (Ф-9) / 30 | Электронный блок управления двигателем |
| F (Ф-10) / 10 | Зарезервировано |
| F (Ф-11) / 30 | Замок зажигания, стартер, дополнительная цепь питания |
| F (Ф-12) / 20 | Втягивающее реле стартера |
| F (Ф-13) / 30 | Вспомогательная цепь питания, зажигание |
| F (Ф-14) / 30 | Зарезервировано |
| F (Ф-15) / 40 | Система кондиционирования |
| F (Ф-16) / 15 | Зарезервировано |
| F (Ф-17) / 40 | Обогрев заднего стекла |
| F (Ф-18) / 10 | Зарезервировано |
| F (Ф-19) / 20 | Система курсовой устойчивости (дополнительно) |
| F (Ф-20) / 15 | Противотуманные фары |
| F (Ф-21) / 15 | Сигнал |
| F (Ф-22) / 15 | Зарезервировано |
| F (Ф-23) / 20 | |
| F (Ф-24) / 15 | На омыватель фар |
| F (Ф-25) / 10 | Бензонасос |
| F (Ф-26) / 10 | Система кондиционирования |
| F (Ф-27) / 20 | Генератор |
| F (Ф-28) / 15 | Зарезервировано |
| F (Ф-29) / 10 | Зарезервировано |
| F (Ф-30) / 15 | |
| F (Ф-31) / 10 | ЭБУ |
| F (Ф-32) / 10 | Центральный замок |
| F (Ф-33) / 5 | ЭБУ |
| F (Ф-34) / 15 | Штатный прикуриватель |
| F (Ф-35) / 5 | Модуль омывателя фар |
| F (Ф-36) / 15 | Резервация |
Поиск и устранение неисправностей Mazda проверить свет двигателя.
- Автомобиль Mazda 3 устанавливаем на ровную площадку, фиксируем задние колеса противооткатными башмаками;
- Открываем пассажирскую дверь, опускаем крышку вещевого ящика;
- Отщелкиваем корпус вещевого ящика, извлекаем его из штатного места;
- Отвинчиваем два винта, снимаем монтажный блок;
- Пластиковым пинцетом поочередно извлекаем модули, проверяем на исправность.
Предохранители Мазда 3: где находятся, замена 5. Поверните примерно на 45° против часовой стрелки удлинитель патрона лампы габаритного света.
Предупреждающие значки на панели
Значок руль может загораться в двух цветах. Если горит желтый руль, то требуется адаптация, а при появлении красного изображения рулевого колеса с восклицательным знаком, уже стоит обеспокоиться отказом системы ГУР или ЭУР. Когда светится красный руль, то наверняка Ваше рулевое колесо стает очень трудно поворачивать.
Значок иммобилайзера, как правило, моргает, если автомобиль закрыт; в таком случае индикатор красного автомобиля с белым ключом сигнализирует о работе противоугонной системы. Но существует 3 основных причины если лампочка иммо постоянно горит: иммобилайзер не активирован, если не считывается метка с ключа или система противоугона неисправна.
Значок ручника загорается не только в том случае, когда активирован (поднят) рычаг ручного тормоза, но и в тех случаях, когда износились тормозные колодки или нужна доливка/замена тормозной жидкости. На авто с электронным ручником лампочка стояночного тормоза может загораться по причине глюка концевика или датчика.

Что делать если загорелся check engine и закрыт багажник в Мазда 3?
Датчик массового расхода воздуха

Почему не горят стоп сигналы: как быстро найти и устранить причину
Мазда 3 горит чек двигателя Когда горит такой индикатор (машина с ключом), то он информирует о неисправностях в работе двигателя (зачастую сбой в работе какого либо датчика) или же электронной части трансмиссии. Чтобы выяснить точную причину потребуется производить диагностику.
Открываем багажник Мазда 3 из салона
Вопрос как открыть багажник Мазда 3 из салона отнюдь не праздный. По многочисленным отзывам владельцев, с ситуацией, когда вещи в багажнике, а замок не реагирует ни на кнопку открывания, ни на ключ, нередки. Причиной этого обычно становится разрыв провода в жгуте, который проходит в резиновой гофре из салона в крышку багажного отделения.

Как открыть багажник Мазда 3? Для этого нужно откинуть спинки задних сидений и проникнуть в багажный отсек. Затем снять клипсы крепления обшивки крышки багажника и саму обшивку. Нажимаем на рычажок возле замка, и…вы на свободе.
После этого можно искать причину: вскрывать гофру и менять поврежденный провод.
Отказ в электрической или электронной системе автомобиля совсем не редкость, особенно для Мазда 3 прошлых поколений, поэтому не пренебрегайте своевременным обслуживанием и оперативным поиском неисправностей.
Некоторым водителям кажется, что если руль начинает дрожать, то это неопасно и проблема исчезнет самостоятельно….
Коррозия — враг любого транспортного средства, особенно автомобиля. Это похоже на инфекционное заболевание, которое постепенно…
Если во время поездки на автомобиле водитель замечает, что горит восклицательный знак на панели приборов, то…
Видео замены лампочки габаритов Мазда 3 (BL):
- оценить работу двигателя по шумности и отсутствию посторонних звуков;
- выполнить осмотр агрегатов для обнаружения потеков технических жидкостей или внешних повреждений;
- при явных признаках неисправности устранить их, либо обратиться к специалистам.
Схема установки предохранителей Mazda 3 Двигатели с изменяемой фазой газораспределения (VVT) иногда страдают от запаздывания газораспределения. В большинстве случаев это вызвано грязным экраном фильтра VVT. Он забивается смазанным маслом. Другая возможность – неисправный соленоид. У Mazda CX-7 было много проблем с натянутыми цепями ГРМ. Коды: P0012 и P0014
Проверьте, мигает ли индикатор двигателя | Свет контроля тяги включен

Если ваша лампа проверки двигателя Mazda мигает, это указывает на пропуски зажигания в одном или нескольких цилиндрах.
В дополнение к двигателю проверки может также загореться индикатор тяги. Более новые автомобили Mazda перейдут в режим «вялый», как только начнет мигать индикатор проверки двигателя. В режиме «limp» трансмиссия больше не переключается, и мощность снижается.
- Плохая катушка зажигания
- Изношенные свечи зажигания
- Поврежденный жгут проводов
- Выдувная прокладка головки
- Проблема каталитического нейтрализатора
Движение с контрольным миганием лампочки двигателя может привести к дальнейшему повреждению двигателя и каталитического нейтрализатора.
Если ваша Mazda прошла более 100 000 миль и свечи зажигания не менялись, установите новые свечи зажигания.
Если вы получаете осечку только для одного цилиндра, у вас может быть плохая катушка на этом цилиндре. Например, если у вас есть код ошибки P0301, у вас есть пропуски зажигания в цилиндре 1, что может быть связано с неисправной катушкой в этом цилиндре.
Видео: Загорелся СHЕСK (ЧEК) – что делать?
- Двигатель работает неровно
- Автомобиль не будет реагировать на педаль акселератора
- Проверьте, мигает ли лампочка двигателя и загорается ли лампа контроля тяги
- Автомобиль дрожит из-за пропуска зажигания
- Отсутствие власти
- Плохая реакция дроссельной заслонки
- Необычный звук двигателя
- Дым от выхлопа
Постоянно горит лампочка Check Engine Первое, с чего стоит начать, это с поиска монтажного блока, в котором располагается ответственный за стоп-сигнал плавкий предохранитель.
Замена лампочки габаритов Мазда 3. Порядок выполнения работ:

1. Поднимите крышку капота и установите на упор.
2. Отсоедините провод от «минусовой» клеммы АКБ.
3. Перейдите к задней части корпуса фары.
4. Нажмите на фиксатор колодки проводов блок-фары и отсоедините ее от разъема.
5. Поверните примерно на 45° против часовой стрелки удлинитель патрона лампы габаритного света.
6. Достаньте патрон с лампой габаритного света Мазда 3 из корпуса блок-фары.
7. Потяните лампу непосредственно за колбу и достаньте ее из контактных зажимов патрона.
8. Замените габаритную лампочку Мазда 3 на рабочую и вставьте ее в патрон.
На фото установлена светодиодная габаритная лампа
Примечание:
Не касайтесь пальцами стеклянной колбы новой лампы. Если Вы случайно загрязнили новую лампочку, то перед установкой протрите ее бумажным полотенцем, смоченным в спирте.
9. Соберите все в обратной последовательности.
Аналоги других производителей:
- Fortluft 2825 от 59 руб.; Koito 1583 от 73 руб.;
- LYNXauto L12805 от 61 руб.; Mazda 9970-LL-W5W от 81 руб.
- Narva 17177 от 64 руб.; Bosch 1 987 301 026 от 106 руб.;
- General Electric 27888 от 66 руб.; Ledo 12966S8N1 от 113 руб.;
- Philips 12961 CP от 72 руб.; Avantech ALB0102 от 428 руб.
Re: Загорелся чек неисправности двигателя
- Тканевые перчатки
- Ветошь
- Спирт
- Оригинальная лампа W5W (12v/5W) Mazda 9970-LL-W5W или Mazda 9970-16-050
Цепь синхронизации Мазда_6_масло_нет_ Влившийся в движение Сообщения: 38 Благодарности: 2 шт. –> Благодарности: 2 шт. Регистрация: Пн, 12 мар 2012
Перехватывающая парковка: что это, как ей пользоваться
Еще один момент. При проверке патронов также стоит взять новые лампочки. Случается так, что из-за окисления патрона выходит из строя сам осветительный прибор. То есть фактически возникает 2 неисправности одновременно.

Проблемы со включателем
Стоп-сигнал на машине загорается в тот момент, когда автомобилист выжимает педаль тормоза ногой, сидя за рулем. При таком нажатии усилие передается на специальный механизм. В народе он получил название лягушка. Он же концевик и он же классический включатель тормозных фонарей.
Видео: Сhеck Еnginе – что означает и почему может гореть?
- Возникли проблемы с плавкими предохранителем. Он окислился или полностью вышел из строя;
- Есть неисправности в самих лампах или одной лампе, в зависимости от того, сколько стопов не работает;
- Причина кроется в механизме, ответственном за включение предупредительного сигнала при нажатии тормоза;
- В гнезде, куда устанавливается лампочка стопа, окислились контакты;
- Появились более серьезные проблемы, связанные с повреждением проводки.
Загорелся check engine: Частые причины Всем доброго времени суток и хорошего настроения! Наверняка многие из водителей сталкивались с ситуацией когда не горят стоп сигналы. Некоторым может показаться, что ничего серьезного и опасного в этом нет, и якобы без проблем можно и дальше эксплуатировать авто с такой неисправностью. Это заблуждение.
Мазда 3 горит чек двигателя
Обсуждение вопросов, связанных с автомобилем I поколения…
Re: Загорелся чек неисправности двигателя
Майкоп Вс, 04 мар 2012, 17:43
Майкоп Продвинутый маздавод Сообщения: 345 Благодарности: 18 шт. –> Благодарности: 18 шт. Регистрация: Ср, 16 ноя 2011 Откуда: Краснодар-Майкоп Машина: M6 2.0акпп – продал
Re: Загорелся чек неисправности двигателя
Мазда_6_масло_нет_ Пн, 12 мар 2012, 11:33
Мазда_6_масло_нет_ Влившийся в движение Сообщения: 38 Благодарности: 2 шт. –> Благодарности: 2 шт. Регистрация: Пн, 12 мар 2012
Re: Загорелся чек неисправности двигателя
Роман626 Пн, 12 мар 2012, 11:58
Роман626 Продвинутый маздавод Сообщения: 866 Благодарности: 25 шт. –> Благодарности: 25 шт. Регистрация: Вт, 22 ноя 2011 Откуда: Новокуйбышевск Машина: М6, седан, 2л, АКП
Re: Загорелся чек неисправности двигателя
Майкоп Пн, 12 мар 2012, 17:31
Майкоп Продвинутый маздавод Сообщения: 345 Благодарности: 18 шт. –> Благодарности: 18 шт. Регистрация: Ср, 16 ноя 2011 Откуда: Краснодар-Майкоп Машина: M6 2.0акпп – продал
Re: Загорелся чек неисправности двигателя
UrVas Вт, 13 мар 2012, 07:57
UrVas Ветеран движения Сообщения: 5375 Благодарности: 103 шт. –> Благодарности: 103 шт. Регистрация: Чт, 17 июн 2010 Откуда: Санкт-Петербург Машина: СХ5
Re: Загорелся чек неисправности двигателя
Aleks_30 Пт, 06 апр 2012, 07:46
Re: Загорелся чек неисправности двигателя
UrVas Пт, 06 апр 2012, 07:56
UrVas Ветеран движения Сообщения: 5375 Благодарности: 103 шт. –> Благодарности: 103 шт. Регистрация: Чт, 17 июн 2010 Откуда: Санкт-Петербург Машина: СХ5
Re: Загорелся чек неисправности двигателя
skynet228 Пт, 18 май 2012, 00:29
Тоже столкнулся с чеком, какие позывы?
1. Обороты время от время скачут в районе 600-900, не выше 1000.
2. При трогании с места, как овощ ей богу, очень слабый подхват, пока тапку солидно не нажмешь не поедет.
3. Чек то горит долго, то гаснет на долго внезапно появляется и внезапно пропадает)
4. БК при старте с места на 1-2 передаче показывает расход аж 40-60л100км это нормально вообще?)
Re: Загорелся чек неисправности двигателя
sva80 Пт, 18 май 2012, 00:54

Предупреждающие значки на панели
Рекомендации по обслуживанию монтажного блока

Re: Загорелся чек неисправности двигателя
- в автомобиль залито некачественное топливо;
- пора заменить свечи зажигания;
- нарушение целостности обмотки катушки зажигания;
- в машине произошло замыкание;
- вышел из строя лямбда-зонд;
- не работают форсунки, катализатор;
- топливный насос неисправен.
Как правильно пристегнуть детское кресло в автомобиле: забота о безопасности Схема предохранителей автомобиля является важной информацией, в случае повреждения того или иного предохранителя необходимо знать расположение предохранителей. Подкапотный блок представлен предохранителями Fс 1 по 36 номер.
